?!DOCTYPE html PUBLIC "-//W3C//DTD XHTML 1.0 Transitional//EN" "http://www.w3.org/TR/xhtml1/DTD/xhtml1-transitional.dtd">
名称QVSSJAFC型可拆式双法C力接?
标签Q?/strong>VSSJAFC型可拆式双法C力接?/a>
VSSJAFC型可拆式双法C力接头连接方式:(x)法兰式,VSSJAFC型可拆式双法C力接头工作压力:(x)0.6-1.6MPAVSSJAFC型可拆式双法C力接头公U通经Q?5-3200mm VSSJAFC型可拆式双法C力接头用介质:(x)水、污水VSSJAFC型?
VSSJAFC型可拆式双法C力接头连接方式:(x)法兰式,
VSSJAFC型可拆式双法C力接头工作压力:(x)0.6-1.6MPA
VSSJAFC型可拆式双法C力接头公U通经Q?5-3200mm
VSSJAFC型可拆式双法C力接头用介质:(x)水、污?/p>
VSSJAFC型可拆式双法C力接头用温度:(x)常温
VSSJAFC型可拆式双法C力接头密材料:(x)NBRQ?/p>
VSSJAFC型可拆式双法C力接头制造标准:(x)GB/T12465-2007
VSSJAFC型可拆式双法C力接?/p>
VSSJAFC型可拆式双法C力接头性能特点Q?/strong>
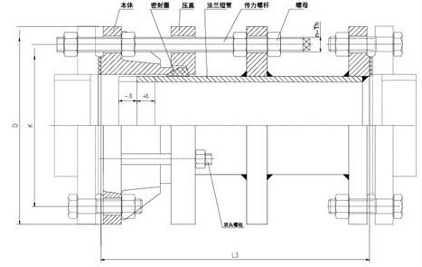
村֥传力接头是在法兰村֥补偿接头的基上增设法兰短及(qing)传力螺杆而成Q次cd的补偿接头与村֥补偿接头和松套限位补偿接头不同的是它的补偉K是指在安装及(qing)拆卸q程中的调节量,一旦将所有的螺母拧紧Q它是刚性连接的Q可以传递u心力Q从而保护阀门、܇{设备?/p>
VSSJAFC型可拆式双法C力接头是有松套~接头和短管法兰、传力螺杆等构gl成Q它能传递被q接件的压力推力Q盲板力Q和补偿\误差Q不能吸收u向位UR重要用于܇、阀门、管路等附g的松套连接?/p>

VSSJAFC型可拆式双法C力接头适用范围Q?/strong>
VSSJAFC型可拆式双法C力接头适用于输送v水、E水、冷热水、饮用水、生zL水、原沏V燃沏V润滑a(b)、成品a(b)、空气、煤气、温度不高于250度的蒸汽和颗_粉状等介质?/p>
VSSJAFC型可拆式双法C力接头安装简要说明:(x)
VSSJAFC型可拆式双法C力接头适用于两边均与法兰连接的\中,安装时调节品两端与法兰的安装长度,对角依次均匀拧紧压盖螺栓Q其成Z个整体,q有一定的位移量,方便安装l修ӞҎ(gu)现场寸q行调整。在工作时可以把轴向推力传递至正个道?/p>
PN0Q?MPa的可拆式双法C力接头的基本寸
| 公称通经 DN | 子外径 Dw | 接尺?/td> | 总长 L | 安装寸L1 | 伸羃?/td> | 重量/kg | ||||
| 法兰外径 D | 螺栓孔中?br/> 圆直径D1 | 螺栓?/td> | ||||||||
| n/?/td> | do | min | max | |||||||
| 65 | 76 | 160 | 130 | 4 | 14 | 450 | 420 | 180 | 40 | 17Q? |
| 80 | 89 | 190 | 150 | 18 | 460 | 20Q? | ||||
| 100 | 114 | 210 | 170 | 28Q? | ||||||
| 125 | 140 | 240 | 200 | 8 | 18 | 37Q? | ||||
| 150 | 168 | 265 | 225 | 46Q? | ||||||
| 200 | 219 | 320 | 280 | 57Q? | ||||||
| 250 | 273 | 375 | 335 | 12 | 76Q? | |||||
| 300 | 325 | 440 | 395 | 22 | 485 | 445 | 395 | 50 | 94Q? | |
| 350 | 377 | 490 | 445 | 122Q? | ||||||
| 400 | 426 | 540 | 495 | 16 | 141Q? | |||||
| 450 | 480 | 595 | 550 | 158Q? | ||||||
| 500 | 530 | 645 | 600 | 20 | 186Q? | |||||
| 600 | 630 | 755 | 705 | 26 | 500 | 465 | 415 | 261Q? | ||
| 700 | 720 | 860 | 810 | 24 | 324Q? | |||||
| 800 | 820 | 975 | 920 | 30 | 680 | 630 | 570 | 60 | 516Q? | |
| 900 | 920 | 1075 | 1020 | 570Q? | ||||||
| 1000 | 1020 | 1175 | 1120 | 28 | 658Q? | |||||
| 1200 | 1220 | 1405 | 1340 | 32 | 33 | 750 | 680 | 620 | 984Q? | |
| 1400 | 1420 | 1630 | 1560 | 36 | 36 | 1273Q? | ||||
| 1600 | 1620 | 1830 | 1760 | 40 | 770 | 700 | 640 | 1767Q? | ||
| 1800 | 1820 | 2045 | 1970 | 44 | 39 | 1981Q? | ||||
| 2000 | 2020 | 2265 | 2180 | 48 | 42 | 830 | 730 | 670 | 2483Q? | |
| 2200 | 2220 | 2475 | 2390 | 52 | 860 | 760 | 700 | 3086Q? | ||
| 2400 | 2420 | 2685 | 2600 | 56 | 3456Q? | |||||
| 2600 | 2620 | 2905 | 2810 | 60 | 48 | 1000 | 880 | 800 | 80 | 3844Q? |
| 2800 | 2820 | 3115 | 3020 | 64 | 4307Q? | |||||
| 3000 | 3020 | 3315 | 3220 | 68 | 4738Q? | |||||
| 3200 | 3220 | 3525 | 3430 | 72 | 5134Q? | |||||
PN1.0MPa的可拆式双法C力接头的基本寸
| 公称通经 DN | 子外径 Dw | 法兰q接寸 | 总长 L | 安装寸L1 | 伸羃?/td> | 重量/kg | ||||
| 法兰外径D | 螺栓孔中?br/> 圆直径D1 | 螺栓?/td> | ||||||||
| n/?/td> | do | min | max | |||||||
| 65 | 76 | 185 | 145 | 4 | 18 | 460 | 420 | 380 | 40 | 19Q? |
| 80 | 89 | 200 | 160 | 8 | 22Q? | |||||
| 100 | 114 | 220 | 180 | 31Q? | ||||||
| 125 | 140 | 250 | 21O | 41Q? | ||||||
| 150 | 168 | 285 | 240 | 22 | 51Q? | |||||
| 200 | 219 | 340 | 295 | 63Q? | ||||||
| 250 | 273 | 395 | 350 | 12 | 84Q? | |||||
| 300 | 325 | 445 | 400 | 485 | 445 | 395 | 50 | 105Q? | ||
| 350 | 377 | 505 | 460 | 136Q? | ||||||
| 400 | 426 | 565 | 515 | 16 | 26 | 495 | 157Q? | |||
| 450 | 480 | 615 | 565 | 175Q? | ||||||
| 500 | 530 | 670 | 620 | 20 | 206Q? | |||||
| 600 | 630 | 780 | 725 | 30 | 510 | 465 | 415 | 291Q? | ||
| 700 | 720 | 895 | 840 | 24 | 361Q? | |||||
| 800 | 820 | 1015 | 950 | 33 | 690 | 630 | 570 | 60 | 574Q? | |
| 900 | 920 | 1115 | 1050 | 28 | 633Q? | |||||
| 1000 | 1020 | 1230 | 1160 | 36 | 732Q? | |||||
| 1200 | 1220 | 1455 | 1380 | 32 | 39 | 740 | 680 | 620 | 1036Q? | |
| 1400 | 1420 | 1675 | 1590 | 36 | 42 | 1340Q? | ||||
| 1600 | 1620 | 1915 | 1820 | 40 | 48 | 800 | 700 | 640 | 1860Q? | |
| 1800 | 1820 | 2115 | 2020 | 44 | 2086Q? | |||||
| 2000 | 2020 | 2325 | 2230 | 48 | 840 | 730 | 670 | 2614Q? | ||
| 2200 | 2220 | 2550 | 2440 | 52 | 56 | 880 | 760 | 700 | 3249Q? | |
| 2400 | 2420 | 2760 | 2650 | 56 | 3638Q? | |||||
| 2600 | 2620 | 2960 | 2850 | 60 | 1030 | 880 | 800 | 80 | 4046Q? | |
| 2800 | 2820 | 3180 | 3070 | 64 | 4534Q? | |||||
| 3000 | 3020 | 3405 | 3290 | 68 | 60 | 4987Q? | ||||
如需最新数据请联系在线客服
沛_良众业有限公司 手机P(x)18638277136 Q?371-64018718 传真Q?nbsp;0371-64018718 邮箱Q?50165323@qq.com 地址Qm义市(jng)西村镇西?nbsp; |址Q?a href="http://m.dayangmei.cn" target="_self">http://m.dayangmei.cn